Custom Home Building Services
Request Estimate
Hero Request Form
Custom Homes by JBS Construction
At JBS Construction, we understand that your home is a reflection of your personality and lifestyle. Since 1997, we've been dedicated to building dream homes from scratch, ensuring every detail is brought to life with precision and care. From the initial lot selection to the final inspection, our process is designed to ensure your new home is everything you envisioned:
- Location: If you already own a lot, we can begin construction immediately. If you need assistance finding the perfect site, our team will help you locate the ideal lot to match your vision and lifestyle.
- Planning: Our standard floor plans are a great starting point, but we understand the importance of personalization. We work closely with you to customize the design, ensuring it meets all your specific needs and desires.
- Construction: Transparency and communication are key during the building phase. You’ll receive regular updates on the progress of your home, so you’re always in the loop and can see your vision coming to life.
- Finalization: As construction wraps up, the final touches are added, and a comprehensive inspection is performed. Once everything is complete, your dream home is ready, and you can step into your new life.
The JBS team commits to making the home building experience smooth and enjoyable for every client. Call us today for a free custom home estimate.
Is It Time for a Custom Home?
Wondering if it's the right time to invest in a custom home? Here are some signs that you might be ready to take the next step:
- Your current home no longer meets your needs
- You've outgrown your space
- You're looking for a home that reflects your unique style
- You're ready to invest in a long-term residence
- You want a home built with modern amenities
- You're tired of compromising on your living space
Get in touch with JBS Construction to start planning your custom home today.
Why Consider a Custom Home?
Building a custom home offers numerous benefits that can enhance your lifestyle and provide long-term value. Here’s why you should consider it:
- Tailored to your specific needs and preferences
- Opportunity to choose high-quality materials
- Energy-efficient design options
- Modern floor plans and layouts
- Enhanced property value
- Personalized aesthetic appeal
Contact us now to learn more about the advantages of building a custom home.
Benefits of Choosing JBS Construction
When you choose JBS Construction for your custom home, you’re partnering with a trusted, family-owned business that offers:
- Best value for price
- Fully licensed and insured services
- Expertise in acquiring and securing all building permits
- Commitment to quality and customer satisfaction
- Decades of experience in home building
- Personalized attention to detail
Call JBS Construction to start your custom home journey.
Contact Us
Ready to build your dream home? Get in touch with JBS Construction to discuss your needs and start planning your custom home. Our team is here to help you every step of the way.
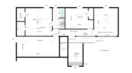
Browse Some of Our Floor Plans

The Hicks Plan #425
2000 Sq. Ft.
3 Bedroom, 2 Bath
2nd floor 1300 Sq. Ft unfinished space




























Share On: